الصفحة الأولى كافة المشاريع سجل الزوار من نحن اتصل بنا  
القائمة الرئيسية
رمز نقطي الصفحة الأولى
رمز نقطي الدراسات الهندسية
رمز نقطي المقاسم المعدة للبيع
رمز نقطي المقاسم المعدة للإيجار
رمز نقطي التدعيم والترميم
رمز نقطي أعمال المساجد
رمز نقطي التنفيذ بالأمانة
رمز نقطي أعمال قيد التنفيذ
رمز نقطي أعمال منفذة
رمز نقطي معلومات عامة
رمز نقطي مواقع صديقة
رمز نقطي أخبارنا
رمز نقطي سجل الزوار
رمز نقطي من نحن
رمز نقطي اتصل بنا

 
بحث في المشاريع
التصنيف
 
النوع
اسم المشروع
  

 
 
القائمة الإخبارية
اضف بريدك للحصول على تحديثات و أخبار موقعنا
 
الاسم الكامل:
البريد الالكتروني :

 
أحوال الطقس
 
 
 
 
 
 
 
 
صفحة جديدة 1
الصفحة الأولى > الدراسات الهندسية > مسجد الإمام أبي حنيفة النعمان.. 
 
تفاصيل المشروع
 

 

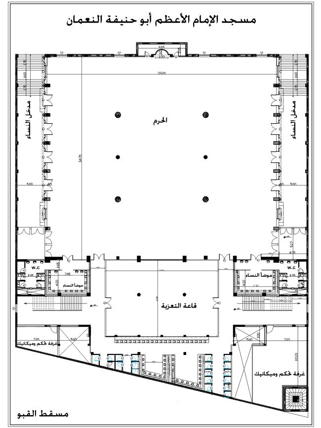
يقع مسجد الإمام أبي حنيفة النعمان في ضاحية حمص الجديدة في منطقة الوعر بالجزيرة السابعة على شارع رئيسي بعرض/40/ متر  وهذه الضاحية ذات كثافة سكانية كبيرة حيث أنها تحتوي على أبراج سكنية وتفتقر إلى المساجد وأقرب مسجد لها على بعد ألف متر
يقع المسجد على أرض مساحتها /2800 /متر مربع
 (
GRC
)تم تصميم هذا المسجد على الطراز البغدادي مع إكسائه بالحجر ومادة
ويتألف المسجد من قبو وطابق أرضي وسدة
القبو : يضم حرم خاص بالنساء ذو مداخل منفصلة عن الرجال بمساحة إجمالية /1860/ مترمربع تشمل الأدراج والمواضئ والحمامات والفسحة السماوية لتهوية وإنارة المسجد بشكل طبيعي ,أما المساحة الصافية لحرم النساء فهي /1360/ مترمربع تتسع تقريبا ل /2800/ مصلية ,كما أن القبو يحتوي على مواضئ وحمامات الرجال مع المداخل بمساحة /590/ متر مربع
الطابق الأرضي : يضم حرم للرجال بمساحة /2100/ مترمربع يتسع تقريبا /4000/ مصلي , يحتوي على قبة بقطر عشرين متر تستند على أربعة أعمدة فقط
السدة : وهي مصلى بمساحة /600/ مترمربع يتسع /1200/ مصلي
المئذنة : للجامع مئذنة بطول /75/ متر على الطراز البغدادي


ملاحظة : يمكن مشاهدة المخططات الخاصة بالمسجد بدقة أكبر من أقسام المشروع

 

 

 

 

 

أقسام المشروع
   
 
صور و مخططات المشروع
 
صور مراحل تطور المشروع
 
تفاصيل المشروع

النوع : مساجد

التصنيف: الدراسات الهندسية

تاريخ الانتهاء :2011-03-26

 
 
 
 
 
 
 


© All Rights Reserved for alwajieh.
2359480