الصفحة الأولى كافة المشاريع سجل الزوار من نحن اتصل بنا  
القائمة الرئيسية
رمز نقطي الصفحة الأولى
رمز نقطي الدراسات الهندسية
رمز نقطي المقاسم المعدة للبيع
رمز نقطي المقاسم المعدة للإيجار
رمز نقطي التدعيم والترميم
رمز نقطي أعمال المساجد
رمز نقطي التنفيذ بالأمانة
رمز نقطي أعمال قيد التنفيذ
رمز نقطي أعمال منفذة
رمز نقطي معلومات عامة
رمز نقطي مواقع صديقة
رمز نقطي أخبارنا
رمز نقطي سجل الزوار
رمز نقطي من نحن
رمز نقطي اتصل بنا

 
بحث في المشاريع
التصنيف
 
النوع
اسم المشروع
  

 
 
القائمة الإخبارية
اضف بريدك للحصول على تحديثات و أخبار موقعنا
 
الاسم الكامل:
البريد الالكتروني :

 
أحوال الطقس
 
 
 
 
 
 
 
 
صفحة جديدة 1
الصفحة الأولى > الدراسات الهندسية > مسجد الإمام النووي.. 
 
تفاصيل المشروع
 

 


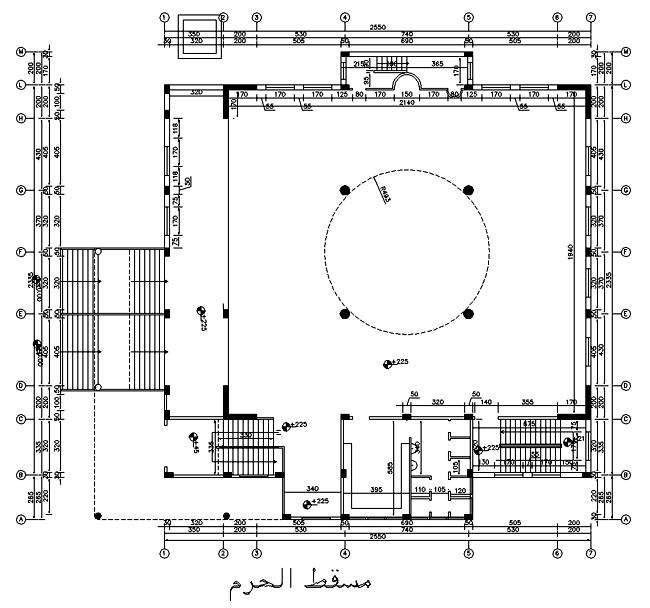
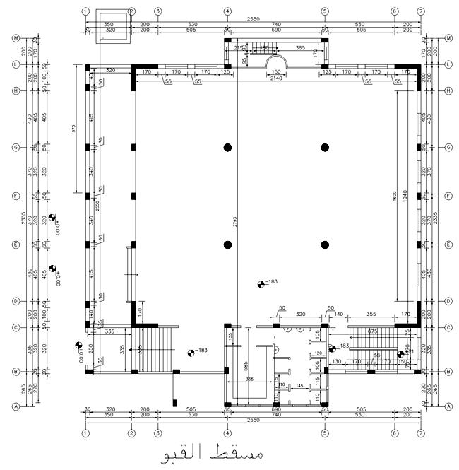
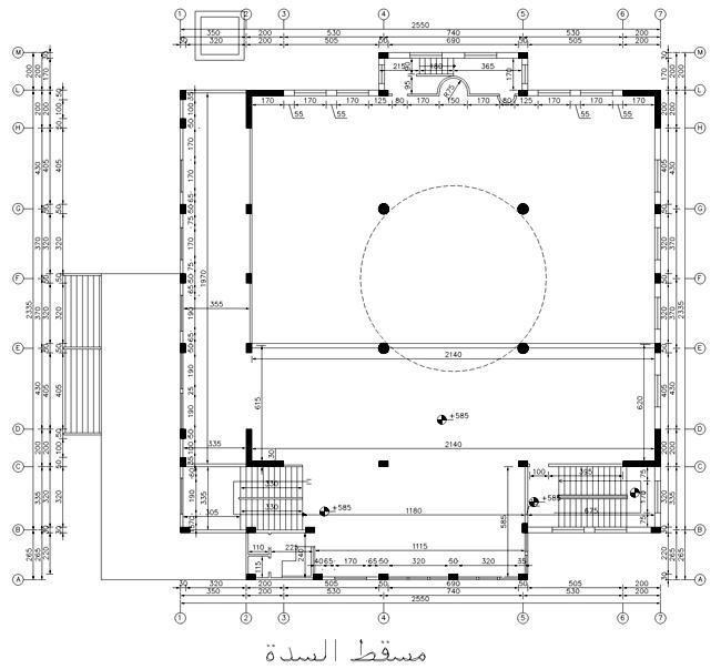
مسجد الغمام النووي يقع في أراضي دير بعلبة من ارض آل أبو حمد الذين تبرعوا مشكورين بأرض المسجد التي تقع على أتوستراد الستين من الجهة الشمالية مقابل معمل السكر , وقد تم إنشاء المسجد بمساحة حوالي 700 م2 ويتألف المسجد من طابق تحت أرضي يضم حرم النساء وملحقاته وطابق أرضي يشمل حرم الرجال وسدة وملحقاتهم .

الإمام النووي رحمه الله تعالى

قال الذهبي في تذكرة الحفاظ : النووي الإمام الحافظ الأوحد القدوة , شيخ الإسلام علم الأولياء محي الدين أبو زكرية , يحيى بن مري , الخزامي ,الحوراني , الشافعي صاحب التصانيف النافعة , مولده في محرم سنة إحدى وثلاثين وستمائة , قدم إلى الشام سنة تسع وأربعين حفظ التنبيه في أربعة أشهر ونصف , وقرأ ربع المذهب حفظا في باقي السنة على شيخه الكمال إسحاق بن احمد , ثم حج مع أبيه بالمدينة النبوية شهرا ونصفا , وذكر شيخنا أبو الحسن بن العطار أن الشيخ محي الدين ذكر له أنه كان يقرأ كل يوم إثني عشر درسا على مشايخه شرحا وتصحيحا  , درسين في الوسيط ودرسا في المهذّب ودرسا في الجمع بين الصحيحين ودرسا في صحيح مسلم ودرسا في اللمع لابن جني ودرسا في إصلاح المنطق ودرسا في التصريف ودرسا في أصول الفقه ودرسا في أسماء الرجال ودرسا في أصول الدين .
قال : وكنت أعلق جميع ما يتعلق بها من شرح مشكل ووضوح عبارة وضبط لغة وبارك الله تعالى في وقتي , وسمع الكتب الستة والمسند والموطأ وشرح السنة للبغوي وسنن الدارقطني وأشياء كثيرة  , وقرأ على ابن مالك كتابا من تصنيفه ولازم الإشتغال والتصنيف ونشر العلم والعبادة والأوراد والصيام والذكر والصبر على العيش الخشن في المأكل والملبس ملازمة كلية لامزيد عليها .
قال ابن العطار  : ذكر لي شيخنا رحمه الله تعالى أنه كان لا يضيع له وقت لافي الليل ولا في النهار , حتى في الطريق , ثم أخذ في التصنيف و الإفادة والنصيحة وقول الحق
قلت ماهو عليه من المجاهدة بنفسه والعمل بدقائق الورع والمراقبة وتصفية النفس من الشوائب - كان حافظا للحديث وفنونهورجاله وصحيحه وليله رأسا في معرفة المذهب .
من تصانيفه : شرح صحيح مسلم شرح صحيح مسلم , ورياض الصالحين , والأذكار , والأربعين , والإرشاد في علوم الحديث , والتقريب مختصرة , وكتاب المبهمات وتحرير ألفاظ للتنبيه والعمدة في تصحيح التنبيه , والإيضاح المناسك , مجلد وله ثلاثة مناسك سواه والتبيان في آداب حملة القرآن وفتاواه مجموعة في المجيلد , والروضة , وشرح المهذب إلة باب المصرات , وشرعح قطعة من البخاري , وقطعة من الوسيط , وعمل قطعة من الأحكام , وجملة كثيرة من الأسماء واللغات , وطبقات الفهاء , وكتاب التحقيق في الفقه إلى باب صلاة المسافر .
كان يواجه الملوك والظلمة بالإنكار ويكتب إليهم ويوخوفهم بالله تعالى , ولي مشيخة دار الحديث سنة خمس وستين بعد أبي شامة إلى أن مات .
قال الشيخ شمس الدين بن فخر الحنبلي : كان إماما بارعا حافظا متقنا أتقن علوما جمة وصنف التصانيف الجمة وكان شديد الورع والزهد تاركا لجميع الرغائب من المأكول إلا ما يأتيه به أبوه من الكعك والتين .
سافر الشيخ فزار بيت المقدس وعاد إلى نوى فمرض عند والده فحضرته المنية فانتقل إلى رحمة الله تعالى في الرابع والعشرين من رجب سنة ست وسبعين وستمائة , وعمره خمس وأربعون سنة .
من كتاب تذكرة الحفاظ للذهبي باختصار وتصرف (جزء 4-صفحة 1470)النهاية. 
 

 

 

 

 

أقسام المشروع
   
 
صور و مخططات المشروع
 
صور مراحل تطور المشروع
 
تفاصيل المشروع

النوع : مساجد

التصنيف: الدراسات الهندسية

تاريخ الانتهاء :0000-00-00

 
 
 
 
 
 
 


© All Rights Reserved for alwajieh.
2357694